3-izbový byt na predaj v lokalite Bratislava - Krasňanyv Bratislave - Rača
Realitná kancelária Domy pre ľudí ponúka na predaj priestranný 3 - izbový byt s veľkým šatníkom v obľúbenej časti Bratislavy – Rača, na ulici Pri vinohradoch. Nehnuteľnosť sa nachádza na prízemí menšieho objektu s jedným nadzemným podlažím, čo jej dodáva príjemný pocit bývania podobný rodinnému domu.
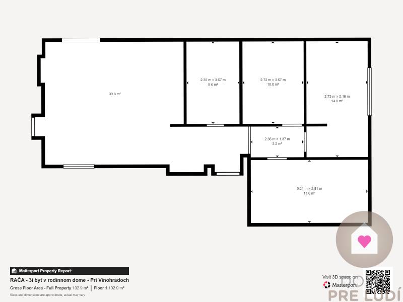
Byt má úžitkovú plochu 99 m² a veľkým benefitom je vlastná záhrada o výmere 56 m² spolu s priestrannou terasou 30 m², ktorá je prístupná priamo z obývacej izby.
Nehnuteľnosť je aktuálne v stave holobytu, pričom už prebehli základné úpravy vrátane riešenia odpadov. Nový majiteľ tak získava ideálnu príležitosť dokončiť si bývanie presne podľa vlastných predstáv. K bytu je k dispozícii aj projektová dokumentácia, ponuky práce na dokončenie. Vykurovanie je plánované formou vlastného kotla (plynového alebo elektrického) s ohrevom vody.
K bytu prislúcha podiel na povale a vinnej pivnici, ktorá dodáva nehnuteľnosti jedinečný charakter.
Mesačné náklady na bývanie sa pohybujú približne na úrovni 200 €.
Byt je evidovaný na liste vlastníctva ako časť rodinného domu, možnosť financovania len bez hypotekárneho úveru.
Lokalita ponúka kompletnú občiansku vybavenosť – v blízkosti sa nachádzajú obchody, školy, škôlky, zdravotné strediská, služby aj množstvo možností na šport a oddych. Výhodou je aj dobrá dostupnosť do centra mesta a blízkosť prírody Malých Karpát.
Táto nehnuteľnosť je ideálnou voľbou pre tých, ktorí hľadajú bývanie s vlastnou záhradou, dostatkom priestoru a možnosťou dotvoriť si interiér podľa vlastného vkusu.
NAŠE SLUŽBY
Táto nehnuteľnosť je ponúkaná prostredníctvom spoločnosti Domy pre ľudí - v provízii sprostredkovateľa sú zahrnuté poplatky spojené s prevodom nehnuteľnosti - základný poplatok za návrh na vklad do katastra nehnuteľnosti vo výške 100€, poplatky za overovanie podpisov predávajúcich na zmluvách, vypracovanie zmlúv a autorizácia zmlúv advokátom, poistenie pre prípad spôsobenej škody do výšky 1,5mil€, hypotekárne poradenstvo a kompletný realitný servis.
Podrobné informácie
Poloha nehnuteľnosti na mape
Pri vinohradoch, Bratislava - Krasňany, Bratislava - Rača, Slovensko


