3-izbový byt na predaj v lokalite Slovenský Grob v okrese Pezinok
PREDAJ STUSTENÝ!
 
Tento byt bude mať v základnej cene: VLASTNÉ TEPELNÉ ČERPADLO (čo znanemná nízke mesačné náklady pre budúceho vlastníka), KLIMATIZÁCIU, EXTERIÉROVÉ HLINÍKOVÉ ŽALÚZIE NA VŠETKÝCH OKNÁCH. 
 
Celú ponuku bytov nájdete na www.byvajtevraji.sk
 
Videoobhliadku totožného bytu z 1. etapy, ktorý sa nachádzal na prízemí si viete pozrieť tu: https://my.matterport.com/show/?m=UDwxQ1TxfTZ
 
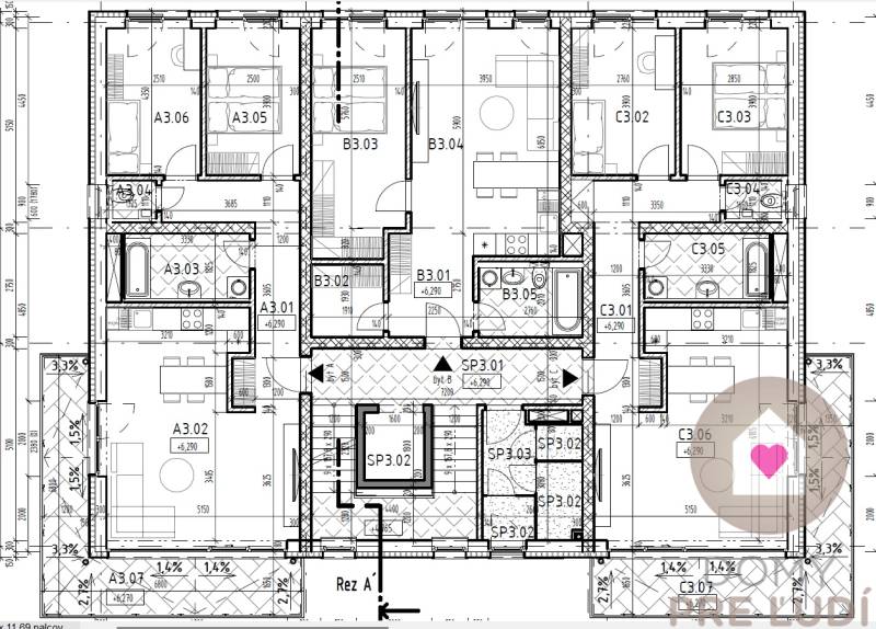
RK Domy pre ľudí ponúka exkluzívne na predaj 3 izbový byt (A3) v bytovom dome, ktorý je aktuálne vo výstavbe v lokalite Malý raj, Slovenský Grob, na Dúhovej ulici.
 
Byt (A3) sa nachádza na 2. poschodí bytového domu (3NP). Celková výmera bytu je 86,81 m2, z čoho 67,92 m2 je samotný byt, 1,34 m2 pivničná kobka a 17,55 m2 priestranný balkón. 
 
Byt dispozične pozostáva zo vstupnej chodby (11,29 m2), kúpeľne (6,08 m2), samostatného WC (1,57 m2), obývačky prepojenej s kuchyňou (28,68 m2) odkiaľ je východ na balkón a 2 izieb (každá 10,20 m2). K bytu prináleží pivničná kobka o výmere 1,34 m2, ktorá sa nachádza pri byte. Orientácia bytu je na V a SZ s výhľadom na Karpaty. 
 
Byt sa predáva v štádiu „holobyt“, s bezpečnostnými protipožiarnymi vchodovými dvermi, vymaľovaný na bielo, s osadeným zásuvkami a vypínačmi, na podlahách ukončené poterom pripraveným na položenie nášľapných vrstiev. Kúrenie v byte bude podlahové teplovodné s vlastným tepelným čerpadlom, ktoré bude umiestnené v kúpeľni. V základnej cene sú aj exteriérové hliníkové žalúzie na všetkých oknách, klimatizačná jednotka a kabeláž na optiku a TV. 
 
Ponúkame taktiež možnosť dokončiť byt do štádia „štandard“ podľa individuálnych požiadaviek klienta. Cena dohodou. Fotky použité v inzeráte sú aj z 1. etapy. 
 
VŠEOBECNÝ POPIS BYTOVÉHO DOMU:
 
Bytový dom ponúka celkovo bývanie v 9tich bytoch na 3 podlažiach. K bytom na prízemí budú prislúchať vlastné záhradky, 3 izbové byty na poschodiach majú priestranné 17,55 m2 balkóny, 2 izbové byty sú bez balkónov. Ku každému bytu prislúcha pivničná kobka. 
 
POUŽITÉ MATERIÁLY:
•	obvodová stena – 30 cm tehla
•	medzibytové priečky – 30 cm akustická tehla
•	vnútorné nenosné priečky- 13 cm
•	strecha – betónová platňa + Fatrafol fólia so štrkovým lôžkom
•	zateplenie – 18 cm minerálna vlna
•	fasádna farba – podľa vizualizácie
•	okná plastové, 6 komorové 3sklá
•	výťah pre 6 osôb
•	spoločné priestory budú vydláždené keramickou dlažbou
•	vstupná brána do bytového domu - hliníková
 
Výstavba bytového domu začala v 4.Q/24, dokončenie je naplánované v 4.Q/25, kolaudácia a odovzdanie bytov v 1.Q/26. 
 
Rezervačný poplatok je 10.000 €, zvyšok sa dopláca po kolaudácii bytového domu a podpise KZ. 
 
1 parkovacie miesto pred bytovým domom o výmere 12 m2 je za príplatok 8.000 €. 
 
Bytový dom sa nachádza v dynamicky sa rozvíjajúcej obci Slovenský Grob –Šúr (Malý raj), ktorá je preslávená svojimi husacími a kačacími hodmi, ktoré každoročne do obce prilákajú tisíce návštevníkov.
 
V lokalite sa nachádza obecná škola a škôlka. Nájdete tu niekoľko detských ihrísk, jazero s oddychovou zónou, fitpark, kaviareň, cukráreň, dentálnu hygienu, výdajné miesto Packety, veterinárnu ambulanciu a kaderníctvo. Zastávka autobusu je 50 metrov od bytového domu. Najbližšie potraviny (Tesco) sa nachádzajú 1 km od bytového domu v lokalite Chorvátsky Grob- miestna časť Čierna Voda, kde sa taktiež nachádza aj OC Monar s viacerými prevádzkami, ako lekáreň, drogéria, kvetinárstvo, fitness centrum, pizzeria a mnoho iného. Do Chor. Grobu sa viete dostať aj bicyklom po novej cyklolávke. Neďaleký privádzač na diaľnicu pri OC Klokan túto lokalitu ešte viac zatraktívnil a urýchlil spojenie s hlavným mestom. V bežnej premávke cesta do centra hlavného mesta trvá cca 15 minút.
 
Táto inzercia nie je verejnou ponukou na uzavretie zmluvy. Vlastník si vyhradzuje právo voľby o tom, komu a za akých podmienok prevedie svoje vlastnícke právo.
 
Text a všetky fotografie sú autorským dielom realitnej kancelárie Domy pre ľudí a ich kopírovanie bez predchádzajúceho súhlasu nie sú povolené. 
 
V prípade dodatočným otázok ma neváhajte kontaktovať mailom, prípadne volajte na 0908 722 222. Ďakujem
 
Podrobné informácie
Poloha nehnuteľnosti na mape
Dúhová, Slovenský Grob, Pezinok, Slovensko
 
  
  
  
  
  
  
  
  
  
  
  
  
  
  
  
  
  
  
  
  
  
  
 


 
  
  
 