2-izbový byt na predaj v Bratislave - Nové Mesto
Nájsť v dnešnej dobe moderne zariadený, plne vybavený byt v príjemnom prostredí plnom zelene a nadštandardnou výmerou býva náročné. My Vám však ponúkame na predaj priestranný 2 izbový byt o výmere 129,29 m2, so slnečnou priestrannou terasou, ktorá zväčšuje celkovú plochu o ďalších takmer 77 m2, s vlastným garážovým státím a pivnicou v uzavretom areáli rezidencie Tupého pri bratislavskej Kolibe.
Bytový dom bol skolaudovaný v roku 2005 a postavený je z kvalitných materiálov. Jedná sa o stavbu so železobetónovým nosným systémom. Obvodové steny sú zateplené kontaktným zatepľovacím systémom hrúbky 150mm + omietka. Celý areál je oplotený a prístup doň majú len obyvatelia komplexu. Vstup pre autá je zabezpečený el. bránou na diaľkové ovládanie. Výhodou súkromného areálu je aj možnosť vonkajších parkovacích státí pre návštevy.
Byt disponuje vonkajšími žalúziami, terasou s protišmykovou mrazuvzdornou dlažbou a parkovaním na vlastných vyhradených garážových státiach odkiaľ sa do bytu dostanete suchou nohou. Benefitom je aj uzamykateľná pivničná kobka priamo na poschodí vedľa bytu ako ďalšia alternatíva úložného priestoru.
Samotný byt je po kompletnej rekonštrukcii. Pri zariaďovaní sa dbal dôraz na dostatok úložného priestoru v podobe šatníkových zostáv, ale taktiež na vzdušnosť a nezahltenie priestranných izieb. Výhodou je bezbariérovosť, nakoľko sa k bytu dostanete priamo od vstupnej brány bytového domu, avšak celý je orientovaný tak, že sa nachádzate na 2 nadzemnom podlaží.
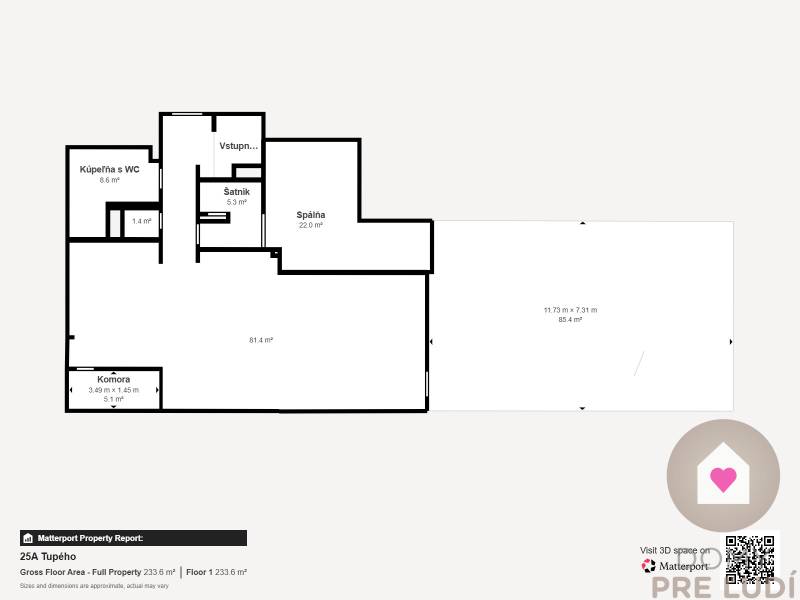
Byt o výmere 129,29m2 je dispozične prepracovaný do posledného detailu a pozostáva z :
- Veľkorysej vstupnej haly kde sa nachádza uzatvárateľný šatník so vstavanou zostavou
- Presvetlenej dennej časti pozostávajúcej z veľkometrážnej obývacej miestnosti s jedálenskou časťou, krbom a klimatizáciou. Z obývacej miestnosti rovnako ako zo spálne je vstup na slnečnú terasu so sedením
- Kuchynskej časti s modernou kuchynskou linkou robenou na mieru so zabudovanými spotrebičmi (chladnička s mrazničkou, umývačka riadu, varná doska, digestor, el. rúra). Výborným dispozičným riešením je samostatná technická miestnosť s práčkou, umývadlom a množstvom odkladacieho priestoru.
- Priestrannej spálne s Walk-in šatníkom s regálovou zostavou s množstvom priestoru, pracovným stolíkom, dizajnovou manželskou posteľou a zo spálne sa taktiež vychádza na terasu.
- Kúpeľne s vaňou, hlbokým sprchovým kútom, umývadlom a WC
- Šatníka s regálovou zostavou, ktorý je možné prerobiť na samostatné WC (v miestnosti sa nachádza komplet predpríprava)
Terasa je čiastočne zastrešená pri vstupnej časti kde sa nachádza vonkajšie sedenie a bola dobudovaná aj markíza, ktorá spríjemňuje posedenie aj počas slnečných letných večerov. Taktiež sa tu nachádza prípojka na vodu, elektrinu a vonkajšia klimatizačná jednotka
K bytu prislúcha aj vyhradené garážové státie, a pivničná kobka o výmere 3,78 m2.
V obývacej miestnosti a spálni je nainštalovaná výkonná klimatizačná jednotka, ktorú je možné ovládať cez aplikáciu.
Na oknách sa nachádzajú vonkajšie žalúzie a taktiež sieťky. O vykurovanie sa stará vodné podlahové kúrenie s termostatom umiestneným v obývacej miestnosti.
Byt sa predáva zariadený.
Kompletná cena bytu a pivnice vrátane provízie: 505.000€. V prípade záujmu o parkovacie státie doplatok 30 000 €..
V prípade záujmu o obhliadku ma neváhajte kontaktovať na tel. čísle +421 940 947 943.
LOKALITA
Byt sa nachádza v uzavretom rezidenčnom projekte s množstvom udržiavanej zelene, detského ihriska. Lokalita pod bratislavskou Kolibou ponúka tiché a nerušené bývanie v jednej z najvyhľadávanejších lokalít hlavného mesta. Uzatvorený komplex s privátnym vstupom poskytuje maximálne súkromie, pokoj a vysoký štandard bývania. Vďaka svojej polohe ponúka rýchly prístup do centra Bratislavy, ako aj bezprostrednú blízkosť prírody.
NAŠE SLUŽBY
Táto nehnuteľnosť je ponúkaná prostredníctvom spoločnosti Domy pre ľudí - v provízii sprostredkovateľa sú zahrnuté poplatky spojené s prevodom nehnuteľnosti - základný poplatok za návrh na vklad do katastra nehnuteľnosti vo výške 100€, poplatky za overovanie podpisov predávajúcich na zmluvách, vypracovanie zmlúv a autorizácia zmlúv advokátom, poistenie pre prípad spôsobenej škody do výšky 1,5mil€, hypotekárne poradenstvo a kompletný realitný servis.
Podrobné informácie
Poloha nehnuteľnosti na mape
Tupého, Bratislava - Nové Mesto, Slovensko




