2-izbový byt na predaj v lokalite Bratislava - Nivyv Bratislave - Ružinov
Exkluzívne ponúkame na predaj moderný a štýlovo zariadený 2 izbový byt o výmere 49,12 m2, so slnečnou priestrannou lodžiou, s vlastným garážovým státím a pivnicou v areáli rezidencie Bazová ,kde je naplánovaná dostavba moderného areálu s vnútroblokom plným zelene (realizácia naplánovaná na 2027). Možnosť odpočtu DPH.
Byt sa nachádza v novostavbe z roku 2022 a je situovaný na 4.poschodí zo 7tich. Orientovaný je na severo-východnú stranu, čo zabezpečuje svetelnosť počas celého dňa. Pri výstavbe boli použité kvalitné nadčasové materiály a developer použil aj moderný prémiový štandard a zvolil aj nadrozmerné, protihlukové, hliníkové okná s 3 sklom. V byte je situovaná klimatizačná jednotka v obývacej izbe, ktorú je možné ovládať cez aplikáciu a na všetkých oknách sú situované vonkajšie elektrické rolety. V byte je umiestnená aj rekuperácia. Podlahy v izbách sú drevené a v kúpeľni je použitý kvalitný keramický obklad. Pri vstupných dverách sa nachádza video vrátnik.
Byt disponuje parkovaním na vlastnom vyhradenom garážovom státí odkiaľ sa do bytu dostanete suchou nohou. Benefitom je aj uzamykateľná pivničná kobka na poschodí na prízemí byt. domu, ako ďalšia alternatíva úložného priestoru.
Pri zariaďovaní samotného bytu sa dbal dôraz na dostatok úložného priestoru- systém šatníkových skríň, ale taktiež na vzdušnosť a nezahltenie izieb. Celý byt je zariadený moderným nábytkom a kompletne vybavený spotrebičmi.
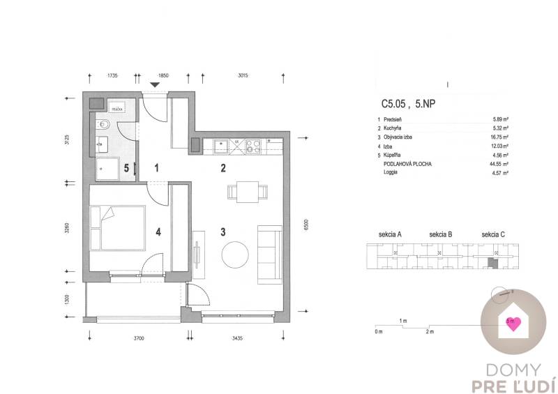
Byt o výmere 44,55m2 je výborne dispozične riešený a pozostáva z :
- Vstupnej chodby kde sa nachádza šatníková skriňa, a vešiaková zostava na bundy
- Presvetlenej dennej časti pozostávajúcej z obývacej miestnosti spojenej s kuchynskou časťou. Obývačka je zariadená gaučom, konferenčným stolíkom, skrinkou pod TV a klimatizáciou. Z obývacej miestnosti, rovnako ako zo spálne je vstup na slnečnú lodžiu so sedením, ktorá zväčšuje plochu bytu o ďalších 4,57 m2 .
- Kuchynskej časti s modernou kuchynskou linkou robenou na mieru so zabudovanými spotrebičmi (chladnička s mrazničkou, umývačka riadu, varná doska, digestor, el. rúra) a barovým pultom so sedením.
- Priestrannej spálne s so vstavanou skrinkovou zostavou s množstvom priestoru, dizajnovou manželskou posteľou a nočnými stolíkmi
- Kúpeľne so sprchovým kútom, umývadlom, WC a priestorom na práčku
K bytu prislúcha aj vyhradené garážové státie, a pivničná kobka o výmere 2,39 m2.
Na oknách sa nachádzajú vonkajšie elektrické rolety a taktiež sieťky. O vykurovanie sa stará podlahové kúrenie s termostatom umiestneným v obývacej miestnosti.
Byt sa predáva zariadený a je kúpou voľný. Mesačné náklady sú 100€ + zálohové platby za elektrinu vo výške 20 €.
Byt je výborným štartovacím riešením bývania a vďaka nízkym nákladom je výborný aj ako investícia s rýchlou návratnosťou. Dá sa preto ihneď dlhodobo ako aj krátkodobo výnosne prenajať a vďaka plánovanému projektu revitalizácie celej časti má veľký potenciál.
Kompletná cena vrátane provízie, garážového parkovacieho státia a pivničnej kobky : 340 000€ (možnosť odpoču DPH).
V prípade záujmu o obhliadku ma neváhajte kontaktovať na tel. čísle +421 940 947 943.
LOKALITA:
Lokalita s výbornou občianskou vybavenosťou a infraštruktúrou, bezproblémová dostupnosť viacerých spojov do mesta (zástavky MHD - autobusy a električky) a ostatných častí Bratislavy (Trnavské a Račianske mýto). V tesnej blízkosti sa nachádza OC Nivy, Autobusová stanica, OC Centrál, Tržnica na Trnavskom mýte, v okolí sa nachádzajú potraviny (Terno, Lidl, Billa), pekárne, reštaurácia u Taliana, kaviarne, fitness centrá, obchody, banky, školy, škôlky, detské ihriská, nemocnica, zdravotné stredisko, trhovisko Miletička a pod.
Táto nehnuteľnosť je ponúkaná prostredníctvom spoločnosti Domy pre ľudí - v provízii sprostredkovateľa sú zahnuté poplatky spojené s prevodom nehnuteľnosti - základný poplatok za návrh na vklad do katastra nehnuteľností vo výške 100€, poplatky za overovanie podpisov predávajúcich na zmluvách, vypracovanie zmlúv a autorizácia zmlúv advokátom, poistenie pre prípad spôsobenej škody do výšky 1,5mil€, hypotekárne poradenstvo a kompletný realitný servis.
Podrobné informácie
Poloha nehnuteľnosti na mape
Bazová, Bratislava - Nivy, Bratislava - Ružinov, Slovensko




