2-izbový byt na prenájom v Bratislave - Staré Mesto
Ak hľadáte byt s pešou dostupnosťou do centra mesta, výbornými spojmi do celej Bratislavy či už električkou alebo autobusom s plnou občianskou vybavenosťou máme pre Vás skvelú ponuku.
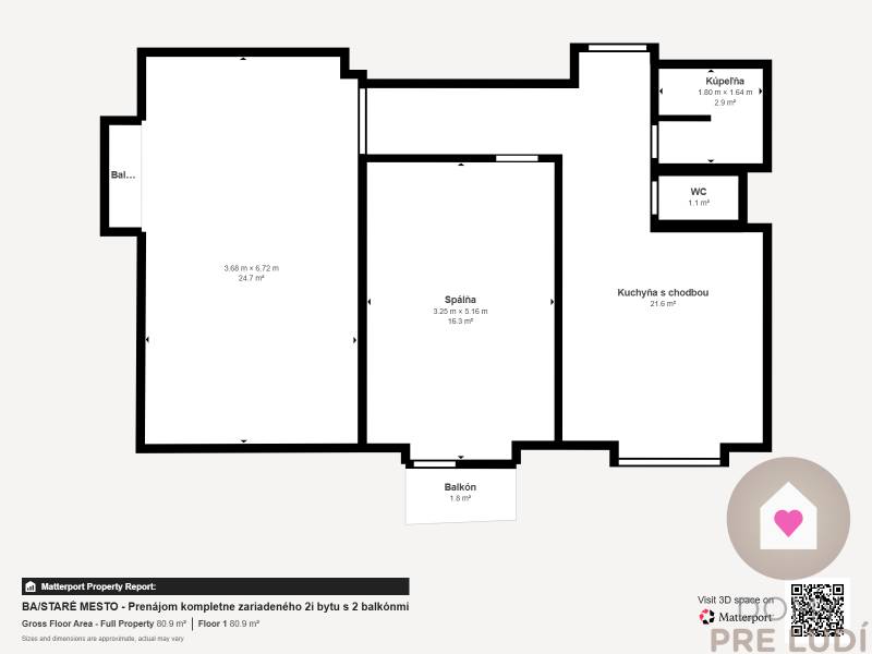
Exkluzívne ponúkame na dlhodobý prenájom výborne dispozične riešený kompletne zariadený 2 izbový byt s oddelenou kuchyňou, balkónom, francúzskym balkónikom a pivnicou v Starom meste na Krížnej ulici v blízkosti Trnavského mýta. Byt sa nachádza na 3. poschodí zo 6tich v zrekonštruovanom tehlovom bytovom dome s výťahom. Orientovaný je na juhovýchodnú stranu do vnútrobloku, čo zaručuje príjemnú svetelnosť počas celého dňa. Na oknách sú situované žalúzie a sieťky.
Samotný byt prešiel staršou kompletnou rekonštrukciou, kedy boli menené elektrické inštalácie, vodovodné inštalácie, plastové okná, dotiahnutý optický kábel, urobené nové stierky, interiérové dvere, plávajúce podlahy, keramická dlažba, WC, kúpeľňa so sprchovým kútom a obkladmi, zariadenie a taktiež komplet celá kuchyňa so vstavanými spotrebičmi.
Byt disponuje:
- vstupnou chodbou s botníkom, zrkadlom a vešiakom na bundy
- samostatnou plne vybavenou kuchyňou - kuchynská linka robená na mieru so zabudovanými spotrebičmi (varná doska, el. rúra, digestor), samostatne stojaca chladnička s mrazničkou, mikrovlnka a práčka, jedálenský stôl so 6 stoličkami a je vybavená aj riadom a komplet kuch. náčiním,
- priestrannou obývacou izbou, v ktorej sa nachádza sedačka, konferenčný stolík, koberec, obývačková skrinková zostava, TV, pracovný stolík so stoličkou, stojaca lampa a vychádza sa z nej na francúzsky balkónik (0,8 m2),
- priestrannou spálňou s manželskou posteľou s matracom, 2 x nočným stolíkom, kreslom, stojacou lampou a 3 šatníkovými skriňami. Vychádza sa z nej na balkón orientovaný do tichého vnútrobloku s množstvom zelene , ktorý zväčšuje plochu bytu o 4,2 m2,
- kúpeľňou so sprchovým kútom, umývadlom, zrkadlovou skrinkou a skrinkou pod umývadlom,
- samostatným WC
- bezpečnostnými dverami.
K bytu prislúcha aj latková pivnica o výmere 2 m2, ktorá je situovaná v suteréne bytového domu
Byt sa prenajíma kompletne zariadený a je k dispozícii ihneď. Je výborným riešením bývania pre jednotlivca, prípadne pracujúcich pár.
Cena mesačného nájmu je vo výške 750€ + 250€ je cena energii vrátane internetu . V prípade 3 osôb sa cena energii navýši o 50 €.
Pri podpise nájomnej zmluvy sa skladá kaucia vo výške jednomesačného nájmu s energiami, ktorá je vratná po uplynutí nájomnej zmluvy.
V prípade záujmu o obhliadky ma neváhajte kontaktovať na tel. čísle +421 940 947 943.
Lokalita je s výbornou občianskou vybavenosťou a infraštruktúrou, bezproblémová dostupnosť mnohých spojov do mesta a ostatných častí Bratislavy -( Krížna ul.,Trnavské a Račianske mýto). Hneď pod domom sa nachádza Terno, kvetinárstvo a množstvo obchodov. V okolí sa nachádzajú potraviny(Lidl, Billa, Terno..), pekáreň, reštaurácia u Taliana, Domino Pizza, kaviarne, OC Centrál, Tržnica na Trnavskom mýte, budúci Istropolis, škola, škôlky, zdravotné stredisko a pod.
Parkovanie je zabezpečené formou parkovacej politiky Staré mesto.
Podrobné informácie
Poloha nehnuteľnosti na mape
Krížna, Bratislava - Staré Mesto, Slovensko




