Rodinný dom na predaj v lokalite Kuchyňa v okrese Malacky
Predaj moderného 5-izbového rodinného domu v obci Kuchyňa, priamo pod lesom
Ponúkame na predaj modernú novostavbu 5-izbového rodinného domu, skolaudovanú v roku 2024, nachádzajúcu sa v obci Kuchyňa, v tichej a vyhľadávanej lokalite priamo pod lesom. Táto poloha je ideálna pre milovníkov prírody, pokoja a aktívneho oddychu.
Dom je navrhnutý s dôrazom na komfortné, úsporné a moderné bývanie, s využitím kvalitných materiálov a súčasných technológií.
DISPOZÍCIA:
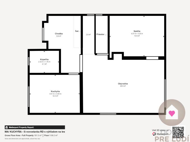
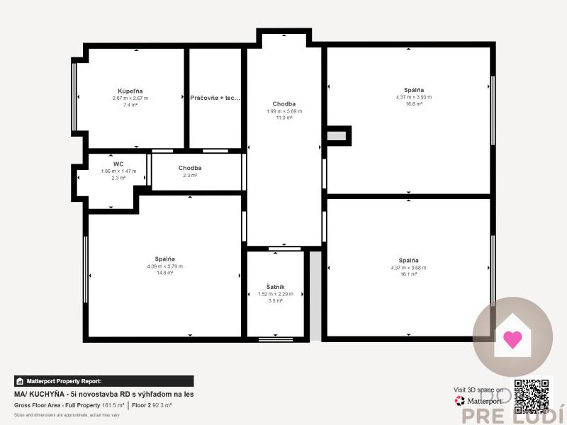
Dom je dvojpodlažná novostavba. Na prízemí sa nachádza zádverie so vstavanými skriňami, vstupná chodba, kúpeľňa so sprchovacím kútom a WC, samostatná kuchyňa so spotrebičmi, obývacia izba s krbom a úložný priestor pod schodmi. Z obývačky sa vstupuje do samostatnej spálne, pričom z oboch miestností je výstup na pozemok. Na poschodí sú tri samostatné izby, šatník, technická miestnosť s práčovňou, kúpeľňa a WC. Pre lepšiu orientáciou v priestore si prosím pozrite priložený pôdorys.
Základné parametre nehnuteľnosti:
počet izieb: 5
úžitková plocha domu: 153 m²
výmera pozemku: 806 m²
typ stavby: novostavba
kolaudácia: 2024
Technické vybavenie a štandard:
murivo: Porotherm (50cm)
plastové okná s izolačným trojsklom
podlahové kúrenie
klimatizácia
fotovoltaický systém
napojenie na obecnú vodu a elektrinu
odpadové vody riešené žumpou
POZEMOK:
Pozemok o výmere 800 m² poskytuje dostatok priestoru na relax, záhradu, bazén alebo ďalšie úpravy podľa vlastných predstáv. Veľkým benefitom je jeho poloha priamo pod lesom, ktorá zaručuje pokoj, súkromie a krásne prírodné prostredie.
LOKALITA:
Obec Kuchyňa je známa svojím prírodným prostredím, blízkosťou lesov a možnosťami turistiky, cyklistiky a oddychu. Lokalita je ideálna pre rodiny aj pre ľudí, ktorí hľadajú pokojné bývanie mimo mestského ruchu, no s dobrou dostupnosťou do okolitých miest.
Realitný servis a právny servis:
Táto nehnuteľnosť je ponúkaná prostredníctvom spoločnosti Domy pre ľudí. V provízii sprostredkovateľa sú zahrnuté všetky poplatky spojené s prevodom nehnuteľnosti, konkrétne:
základný správny poplatok za návrh na vklad do katastra nehnuteľností vo výške 100 €
poplatky za overovanie podpisov predávajúcich na zmluvách
kompletné vypracovanie zmluvnej dokumentácie
autorizácia zmlúv advokátom
poistenie pre prípad spôsobenej škody až do výšky 1 500 000 €
hypotekárne poradenstvo
kompletný realitný servis
Kupujúci tak má zabezpečený bezpečný, profesionálny a bezstarostný priebeh celého obchodu.
Podrobné informácie
Poloha nehnuteľnosti na mape
Kuchyňa, Kuchyňa, Malacky, Slovensko


