3-izbový byt na predaj v Pag
Ak hľadáte úplne nový apartmán v novej lokalite s výhľadom na more, ktorý bude k dispozícii už budúcu letnú sezónu, ktorý si môžete zariadiť podľa vašich predstáv - tak máme pre Vás skvelú ponuku.
K dispozícii máme exkluzívnu ponuku apartmánov v luxusnom apartmánovom dome v lokalite Mandre. V apartmánovom dome sa nachádza 6 trojizbových apartmánov, 1 štvorizbový apartmán a 1 štvorizbový penthouse na najvyššom poschodí. Celý dom bude postavený z kvalitných materiálov a každý z apartmánov dokončený do štandardu - kompletne vybavená kúpeľňa s toaletou, obklady, dlažba, keramické podlahy, dvere, podlahové kúrenie, klimatizácia, predpríprava na kuchyňu a vírivku, hliníkové okná a sklenené zábradlia, bezpečnostné a protipožiarne dvere, elektrický vrátnik na otváranie vchodu. Ku každému z apartmánov je v cene zahrnuté už aj vyhradené parkovacie státie .V prípade záujmu možnosť zmeny štandardu v bytoch za príplatok.
Výstavba apartmánového domu začne 09/2024.
Výmera apartmánu:
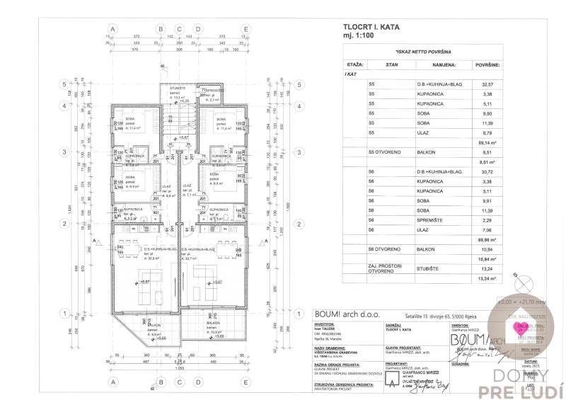
Apartmán sa nachádza na 1. poschodí, pre lepšiu predstavivosť si prosím pozrite priložený pôdorys.
DISPOZÍCIA:
Apartmán dispozične pozostáva z
obývacej izby spojenej s kuchyňou o výmere 19,30m2
spálne o výmere 7,20m2
spálne o výmere 7,30m2
kúpeľne s WC o výmere 4,50m2
vstupnej chodby o výmere 9,30m2
loggie o výmere 8,20m2
K bytu prislúcha aj plechová pivnica o výmere 2,5 m2 a vlastné vyhradené vonkajšie parkovacie státie.
Mesačné náklady sa vyrátavajú nasledovne : 0,5 € / m2 + zálohové platby za elektrinu a internet. Internet je možný od Telekomu
Financovanie - pri podpise Rezervačnej zmluvy sa skladá záloha vo výške 5 000€. Po dokončení hrubej stavby sa dofinancováva min. 50% z celkovej sumy, pri odovzdaní apartmánu 25% zo zvyšnej sumy(plánované na 07/2026) a po kolaudácii sa dopláca zvyšná časť kúpnej ceny.
Mandre je vyhľadávaná, luxusná a kľudná časť ostrova Pag s výbornou vybavenosťou, vlastnou Marínou, obchodmi, kaviarňami, reštauráciami, množstvom krásnych pláži vzdialená len 625 km od Bratislavy. Svojou polohovou patrí nielen medzi vychytené dovolenkové destinácie na nerušený relax a oddych ale zároveň sa stáva vynikajúcou investičnou príležitosťou na prenájom. Apartmánový dom sa nachádza cca 400m od pláže.
Kompletná cena apartmánov aj s parkovacím státím (vrátane provízie - možnosť odpočtu DPH). V prípade záujmu vieme zabezpečiť aj služby ohľadne ďalšieho prenájmu.
V prípade záujmu o viac informácii alebo obhliadku nás neváhajte kontaktovať na tel.čísle : +421 940 947 943
Podrobné informácie
Poloha nehnuteľnosti na mape
Velebitská, Mandre, Pag, Chorvátsko




