2-izbový byt na prenájom v Bratislave - Ružinov
Ak hľadáte byt s pešou dostupnosťou do centra mesta, plnou občianskou vybavenoťou a vyhradeným parkovacím státím v garáži máme pre Vás skvelú ponuku.
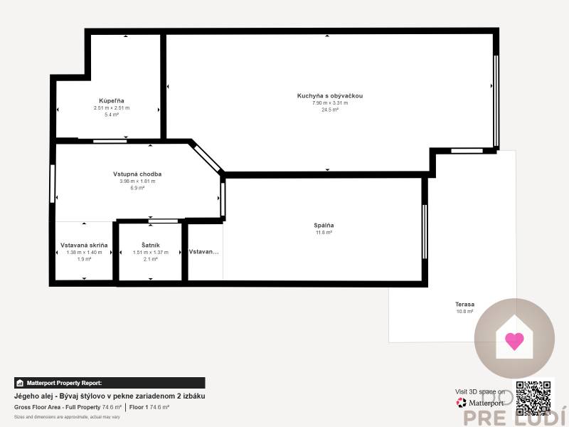
Exkluzívne ponúkame na dlhodobý prenájom moderný, dobre dispozične riešený a kompletne zariadený 2 izbový byt s balkónom. Byt sa nachádza na Jégeho ul. v komplexe Jégeho alej z roku 2009.
Byt má výmeru 54,64 m2 a prislúcha k nemu priestranný balkón so sedením o výmere 7,45m2, na ktorý sa vychádza z obývacej izby. Nachádza sa na 3. poschodí z 13tich a orientovaný je na východnú stranu. V roku 2021 majitelia byt kompletne prerobili a zariadili novým nábytkom. Jediné pôvodné ostali šatníkové zostavy a roll-door v spálni.
DISPOZÍCIA:
Byt pozostáva z :
- vstupnej haly s 2 walk-in šatníkmi s množstvom úložného priestoru
- veľkej obývacej izby spojenej s plne zariadenou kuchynskou časťou (kuchynská linka so zabudovanými spotrebičmi : vstavaná chladnička s mrazničkou, indukčná varná doska, umývačka riadu, el. rúra, digestor a barovým sedením so 4 stoličkami. V obývačke sa nachádza veľký gauč v tvare L, konferenčný stolík, skrinka pod televízorom, televízor, príručný stolík.
- samostatná spálňa s manželskou posteľou s matracmi, nočnými stolíkmi a rolldorom
- kúpeľňa s vaňou, práčkou, umývadlom , skrinkou pod umývadlom, zrkadlom a WC
- priestranný balkón so sedením, na ktorý je dostupnosť z obývacej izby a zväčšuje plochu bytu o 7,45 m2.
- bezpečnostné dvere
Na oknách sa nachádzajú žalúzie a sieťky proti hmyzu + zatemňovacie závesy.
K bytu je možné prenajať aj vnútorné parkovacie státie v garáži bytového domu za mesačný poplatok 50 €.
Výhodou je aj recepcia spojená s SBS službou dostupná 24/7.
Bývanie je výborným riešením pre pracujúci pár, prípadne jednotlivca a je k dispozícii ihneď.
Cena mesačného nájmu je vo výške 950€ už aj vrátane všetkých energii a optického internetu a TV programov. V prípade záujmu o parkovacie státie je kompletná cena mesačného prenájmu 1000 €. Pri podpise nájomnej zmluvy sa skladá kaucia vo výške jedno mesačného nájmu s energiami, ktorá je vratná po uplynutí nájomnej zmluvy a provízia vo výške 700 € (možnosť rozdelenia do 2 mesiacov).
V prípade záujmu o obhliadku ma neváhajte kontaktovať na tel. čísle : +421 940 947 943.
Lokalita je s výbornou občianskou vybavenosťou a infraštruktúrou ( zástavky električky, autobusov a trolejbusov), bezproblémová dostupnosť mnohých spojov do mesta a ostatných častí Bratislavy - (Trnavské a Račianske mýto).V okolí sa nachádzajú potraviny( Malina, Billa, Lidl, Terno..), reštaurácie, kaderníctva, fitnes centrá, OC Centrál, Zimný štadión, Tržnica na Trnavskom mýte, trhovisko Miletička, zdravotnícke stredisko a pod.
Podrobné informácie
Poloha nehnuteľnosti na mape
Jégého, Bratislava - Ružinov, Slovensko




